€ 101500
€ 1409.72 / m2
BGN 198516.75
BGN 2757.18 / m2
72 m2
Phone:
0882241974
Office phone:
0884685146
Открийте мястото, където ще се чувствате у дома от първия момент.
Титан Пропъртис с радост предлага на Вашето внимание двустаен апартамент за продажба в кв. Кайсиева градина, Варна.
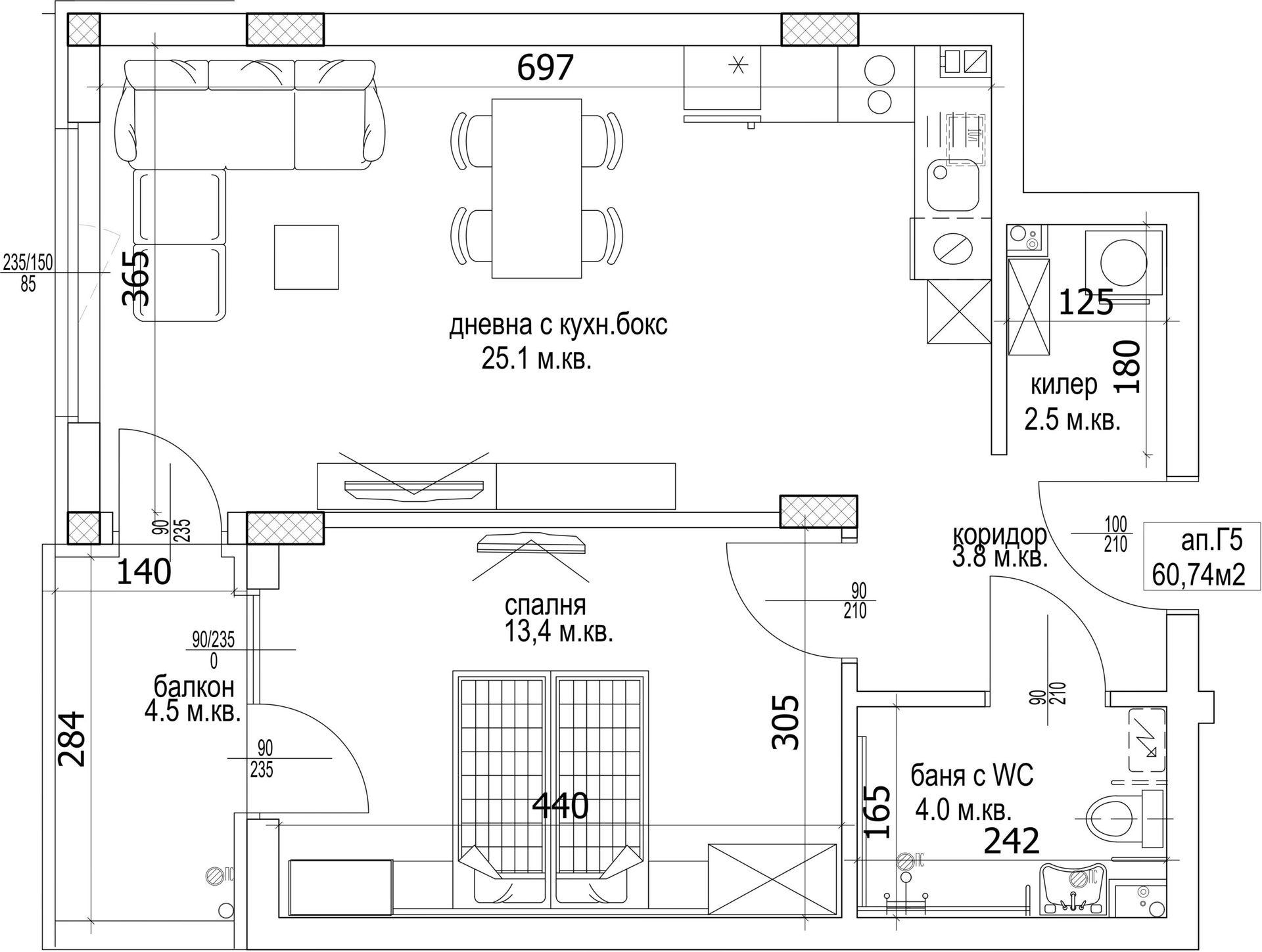
Жилището е с площ 72 кв.м, намира се на 2-ри етаж в девететажна сграда с планирано завършване през 2028 г.
Разпределението включва хол с кухненски бокс, отделна спалня, баня с тоалетна, килер и балкон
Апартаментът съчетава съвременни и качетсвени материали и практично разпределение за комфортен начин на живот.
Изложение: Запад
Допълнителна информация: Сградата се отличава с елегантен облик и хармонична архитектура, която естествено се вписва в околното пространство. Състои се от 4 входа, разпределени така, че да осигурят удобство и функционалност за живущите. Жилищата в сградата са разнообразни – от уютни апартаменти за млади хора до просторни домове с панорамни тераси, подходящи за семейства. Подземното ниво предлага гаражи и паркоместа, а в зоната около сградата са разположени допълнителни външни паркоместа и зелени площи за отдих. Акцентът е върху големите тераси, връзката с озеленените пространства и комфорта на ежедневието, което прави сградата предпочитан избор за хора, търсещи баланса между градска динамика и спокойствие.
"С нас, вашето търсене на имот завършва с усмивка."
За оглед на това и други атрактивни предложения, не се колебайте да ни потърсите на посочения телефон или да ни изпратите данните си чрез формата за запитване на сайта.
Реф. номер: 2100154
Type deal: sales
Kind: one bedroom
Floor: 2
Floors: 9
Building year: 2028 г.
Completion:
Construction: new building
Area: 72 m2
Exposure: West
Phone: 0882241974
Office phone: 0884685146
€ 550
BGN 1075.71
Zimno kino trakiya, Varna
Area: 50 sq. m.
Construction: brick
Completion: Акт 16
Kind: one bedroom
€ 600
BGN 1173.5
Vazrazhdane 1, Varna
Area: 65 sq. m.
Construction: new building
Completion: Акт 16
Kind: one bedroom
€ 500
BGN 977.92
M t sv nikola, Varna
Area: 65 sq. m.
Construction: new building
Completion: Акт 16
Kind: one bedroom
€ 650
BGN 1271.29
Tsentar, Varna
Area: 60 sq. m.
Construction: new building
Completion: Акт 16
Kind: one bedroom
€ 380
BGN 743.22
Tsentar, Varna
Area: 45 sq. m.
Construction: new building
Completion: Акт 16
Kind: one bedroom
€ 700
BGN 1369.08
Briz, Varna
Area: 65 sq. m.
Construction: new building
Completion: Акт 16
Kind: one bedroom
Become part of the company with the best career development system!
Apply now!