Тристаен апартамент, за продажба, кв.Левски

  • sales
  • 2026 г.
  • Акт 14
  • new building

€ 144500

€ 2064.29 / m2

BGN 282617.44

BGN 4037.39 / m2

70 m2

Phone:
0882214840

Office phone:
0884685146

Gallery

Property Description

Агенция за недвижими имоти Титан Пропъртис има огромното удоволствие да Ви предложи за продажба, Тристаен апартамент в кв. Левски

Районът е добре свързан с останалата част на Варна чрез автобусни и тролейбусни линии. В близост до имота се намират множество магазини, училища, детски градини и други обществени услуги, което го прави удобен за живеене.

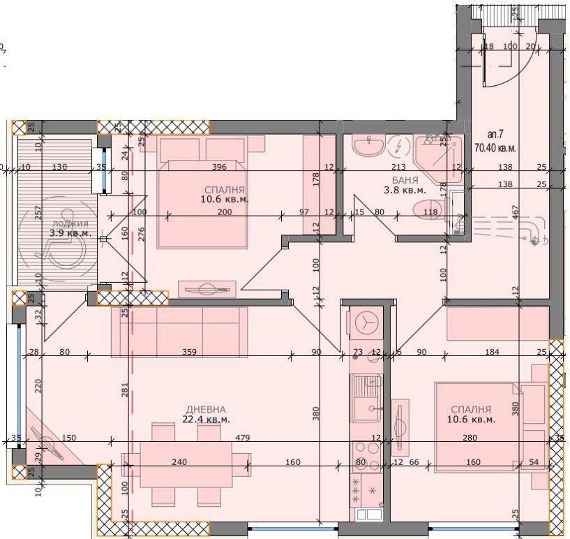
Апартаментът е ситуиран на 1-ви етаж и разполага с площ от 70 кв.м., разгърната по следния практичен начин: входно антре, спалня, дневна с кухненска част с излаз на лоджия, втора спалня с лоджия, баня с тоалетна

Допълнителна информация: Акт 16 се очаква през 2026г.

Жилището ще бъде издадено в степен на завършеност "на тапа" - по БДС, като има опция за завършване ’’до ключ’’.

За оглед на това и други атрактивни предложения, не се колебайте да ни потърсите на посочения телефон или да ни изпратите данните си чрез формата за запитване на сайта.

Реф. номер: 2094881

Агенцията съдейства за банково кредитиране с всички водещи банки в страната при най-добри условия!

Details

Type deal: sales

Kind: two bedroom

Floor: 1

Floors: 4

Building year: 2026 г.

Completion: Акт 14

Construction: new building

Area: 70 m2

Exposure: West / South

Виж апартаменти в сградата
Ярослав Шилоносов
Ярослав Шилоносов специалист продажби, гр. Варна

Contact us

Want to be successful in real estate?

Become part of the company with the best career development system!

Apply now!