€ 236200
€ 3374.29 / m2
BGN 461967.05
BGN 6599.53 / m2
70 m2
Телефон:
0882956529
Телефон на офис:
0889706358
Открийте мястото, където ще се чувствате у дома от първия момент.
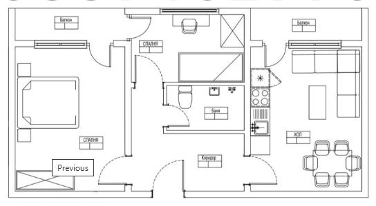
Титан Пропъртис офис - Черни връх с радост предлага на Вашето внимание тристаен апартамент за продажба в кв. Подуяне. Жилището с обща площ 70 кв.м се намира на 6-ти етаж в панелна сграда с 8 етажа. С южно изложение то е изпълнено с естествена светлина през целия ден. Разпределението включва хол с кухненски бокс, две спални, две тераси, баня с тоалетна и 4 кв.м мазе към имота. Апартаментът се предлага в готово за нанасяне състояние "до ключ" и е с централизирано отопление (ТЕЦ). Комбинацията от функционално разпределение и висококачествено завършване го прави подходящ избор както за семейство, така и за инвестиция.
В близост до имота ще намерите:
- Училище: 95 средно училище "Проф. Иван Шишманов" на 433 метра
- Основно училище: 143 ОУ "Георги Бенковски" на 225 метра
- Банка: ОББ клон Суха Река на 264 метра
- Банка: tbi bank на 191 метра
- Медицински център: 23-то ДКЦ на 443 метра
- Медицински център: Медицински център Хера/Medical Center Hera на 438 метра
- Метростанция: ХАДЖИ ДИМИТЪР на 300 метра
- Междинна спирка: МЕТРОСТАНЦИЯ ХАДЖИ ДИМИТЪР на 219 метра
"С нас, вашето търсене на имот завършва с усмивка."
За оглед на това и други атрактивни предложения, не се колебайте да ни потърсите на посочения телефон или да ни изпратите данните си чрез формата за запитване на сайта.
Реф. номер: 2089406.
Вид сделка: продажба
Тип: тристаен
Етаж: 6
Етажи: 8
Година на строителство: 1980 г.
Завършеност: Акт 16
Строителство: панел
Квадратура: 70 m2
Изложение: Юг
€ 1300
BGN 2542.58
Младост 1, София
Квадратура: 118 кв. м.
Строителство: ново
Завършеност: Акт 16
Тип: тристаен
€ 750
BGN 1466.87
Красно село, София
Квадратура: 90 кв. м.
Строителство: ново
Завършеност: Акт 16
Тип: тристаен
€ 1050
BGN 2053.62
Младост 1А, София
Квадратура: 100 кв. м.
Строителство: тухла
Завършеност: Акт 16
Тип: тристаен
€ 750
BGN 1466.87
Бъкстон, София
Квадратура: 90 кв. м.
Строителство: тухла
Завършеност: Акт 16
Тип: тристаен
€ 1100
BGN 2151.41
Симеоново, София
Квадратура: 98 кв. м.
Строителство: ново
Завършеност: Акт 16
Тип: тристаен
€ 1200
€ 1100
BGN 2347
BGN 2151.41
Център, София
Квадратура: 90 кв. м.
Строителство: тухла
Завършеност: Акт 16
Тип: тристаен
Станете част от компанията с най-добра система за кариерно развитие!
Кандидатствайте сега